| Телефон | +7(4822)60-84-83 |
| Адрес | г. Тверь, пр. Победы 35 |
| ok-graz@yandex.ru | |
| Телефон | +7(961)017-14-77 |
| Телефон | +7(905)602-31-11 |
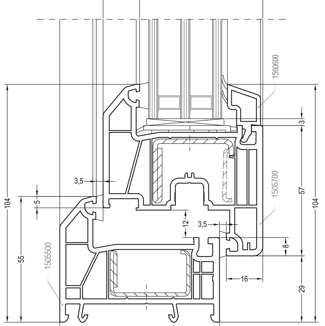
GRAZIO (70 ММ / 5 КАМЕР)
GRAZIO: ИЗЯЩНЫЙ ДИЗАЙН И ОПТИМАЛЬНАЯ ТЕПЛОНОМИЯ ПО ПРИВЛЕКАТЕЛЬНОЙ ЦЕНЕ
Новая пятикамерная система GRAZIO – уникальное изобретение REHAU, сочетающее в себе изящество формы и исключительные теплозащитные свойства. Несмотря на грациозный дизайн - это крепкая функциональная система способная выдерживать экстремально низкие температуры и повышенную влажность. Ее функциональные свойства подтверждены экспериментально.
ОСНОВНЫЕ ТЕХНИЧЕСКИЕ ХАРАКТЕРИСТИКИ:
Системная глубина / число камер: 70 мм / пятикамерная.
Теплоизоляция: Rопр=0,85 м2 ◦С/Вт.
Взломобезопасность: установка усиленных приборов запирания благодаря смещению оси приборного паза 13 мм.
Воздухо- и водонепроницаемость: надежная защита от сквозняков, пыли и воды благодаря двум контурам уплотнений (нахлест уплотнений 6/8 мм внутри).
Поверхность: высококачественная, идеально гладкая, удобная для ухода
Толщина заполнений 10-41 мм
Звукоизоляции – Rw от 39 до 45 дБ* (данные испытаний «АПРОК») *в зависимости от толщины заполнений
ПРЕИМУЩЕСТВА
Новой системы исключают любые компромиссы. Внешне легкая и изящная REHAU GRAZIO открывает возможности для дизайна любой сложности без ущерба для тепла. Профили REHAU GRAZIO позволяют изготавливать окна различных форм: от прямоугольного до изогнутого или круглого. Обновленный дизайн в сочетание радиусов и ступенчатого наклона лицевых поверхностей профилей придадут окнам из профилей REHAU GRAZIO элегантный внешний вид.
Оконные системы GRAZIO сохраняют тепло даже в самых экстремальных температурных условиях и обеспечивает тем самым исключительно высокое сопротивление теплопередачи: 0,85 м2°С/Вт. и существенную экономию теплоэнергии.
Ценовое позиционирование привлекательно для бизнеса поскольку и сама система и ее стоимость выгодно отличается от аналогичных предложений на рынке.
СТРОИТЕЛЬНЫЕ РЕШЕНИЯ
Система REHAU GRAZIO будет востребована в индивидуальном и объектном строительстве, в том числе в северных регионах РФ. Оптимально подходит для нового строительства и реконструкции с использованием окон белого цвета и окон, кашированных в различные цвета, в т.ч. повторяющих цвет и структуру дерева. Система используется для изготовления окон и балконных дверей.

