| Телефон | +7(4822)60-84-83 | 
| Адрес | г. Тверь, пр. Победы 35 | 
| ok-graz@yandex.ru | |
| Телефон | +7(961)017-14-77 | 
| Телефон | +7(905)602-31-11 | 
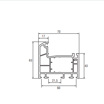
KRAUSS 5800 (58 ММ / 3 КАМЕРЫ)
KRAUSS 5800: ДОСТУПНОЕ КАЧЕСТВО! 
Поскольку профильная система с 3 внутренними камерами имеет монтажную глубину 58 мм, она не рекомендована для эксплуатации в суровых климатических условиях. Ее целесообразно использовать при сборке оконных блоков для дач, балконов и лоджий, а также складских и производственных помещений. Допускается установка окон Краусс 5800 в жилых и офисных помещениях в южных регионах РФ. По мнению экспертов, профили KRAUSS 5800 – качественный аналог систем KBE (Эталон). Они не адаптированы под монтаж противовзломной фурнитуры, поэтому обеспечивают только базовый уровень безопасности.
ОСНОВНЫЕ ТЕХНИЧЕСКИЕ ХАРАКТЕРИСТИКИ:
Системная глубина / число камер: 58 мм / трёхкамерная.
Стандарт: ГОСТ 30673-2013
Толщина стеклопакета: 32 мм
Высота фальца: 24 мм
Расстояние оси фурнитурного паза: 9 мм
ПРЕИМУЩЕСТВА
В створке устанавливаются одно/двухкамерные стеклопакеты до 32 мм, а также стекло 6 мм
Рама и створка являются трехкамерными профилями. Воздух во внутренних камерах обеспечивает высокую теплозащиту. Для усиления противовзломности в третьей камере створки организованы специальные наплывы для крепления петлевой группы
Непрерывные контуры наружного и внутреннего уплотнений сохраняют свои функциональные свойства в течение длительного времени и, благодаря эластичости, обеспечивают легкое открытие и закрытие створок. Контур наружного уплотнения защищает раму от проникновения грязи и воды
Уплотнения, устойчивые к климатическим воздействиям, препятствуют поступлению воды в фальц стеклопакета
Края профилей закруглены, дождевая вода легко стекает вниз. В комбинации с тонкими переплетами конструкция выглядит очень элегантно
Перегородки первой камеры позволяют легко выводить конденсат из полостей
Для удобства установки крепежа, на внешних нелицевых стенках главных профилей предусмотрена центрирующая канавка
Приведённое сопротивление теплопередаче комбинации рама/створка 0,783 м С/ВТ

